THE STRATA SERIES

STRATA SERIES

The Strata 52

Dimensions 52′ x 28′
Size – 1,216 SF Main
Beds – 1
Baths – 1.5
Starting from $152/ft²
Options:
20′ x 14′ Covered Porch (Pictured)
8′ Front Covered Porch Extension (Pictured)
8′ Great Room Extension
Timber Stairs
Timber Stain

STRATA SERIES

The Strata 60

Dimensions 60′ x 28′
Size – 1,504 SF
Beds – 2
Baths – 2
Starting from $141/ft²
Options:
20′ x 14′ Covered Porch (Pictured)
8′ Front Covered Porch Extension (Pictured)
8′ Great Room Extension
Timber Stairs
Timber Stain

STRATA SERIES

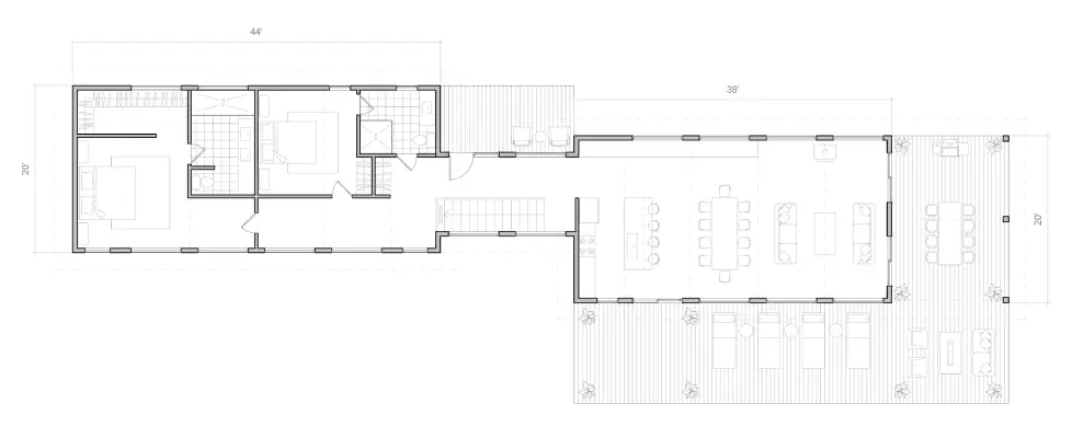
The Strata 98

Dimensions 98′ x 26′
Size – 1,800 SF
Beds – 2
Baths – 2
Starting from $158/ft²
Options:
20′ x 14′ Covered Porch Roof Extension (Pictured)
8′ Front Covered Porch Extension
8′ Great Room & 8′ Bedroom Wing Extension
Timber Stairs
Timber Stain

standard inclusions

Strata Series - Standard Specs

exterior Wall Panels

  • 8’ – 14’ Main Level Walls
  • 2×6 Stud Wall, 16” o.c Spacing.
  • 7/16” OSB Sheathing.
  • Typar House Wrap
  • 1×3 Strapping with ¾” Airspace.
  • LP Smartside 8” Eng. Wood Lap Siding

Structural Pine Timbers

  • 8 x 8 Timber Posts
  • 8 x 10 Timber Beams
  • 8 x 8 Timber Purlins
  • Heavy Timber Mono Trusses

R40 Insulated Roof Panels

  • ½” Plywood Exterior Sheathing
  • 2×12 spruce rafters, 24” o.c spacing.
  • 9 ¾” EPS Insulation
  • 7/16” OSB interior sheathing
  • 1×6 Pine T&G ceilings

White W&D Package

  • Energy Star Windows and Doors
  • Low-E Argon Vinyl Windows
  • Full Lite Steel Entry Door
  • 6’ Vinyl Patio doors
  • W&D’s Require Jamb Extension
Exclusions: Foundation, Sub Floor, Transportation, Crane, Decks, Exterior Roofing (asphalt or steel), Exterior wall
insulation, Interior framed walls, Stairs & railings Interior wall and floor finishing, Plumbing, Electrical, HVAC, Kitchen & bathroom fixtures cabinetry, vanities, appliances, etc.
Branded by Projectsity
Scroll to Top