GNEISS VISTA SERIES

Gneiss Vista

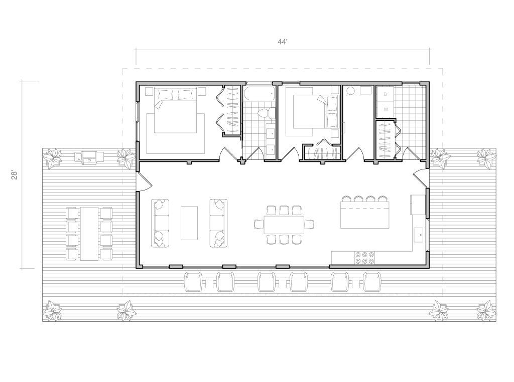
The Gneiss Vista

Dimensions 44′ x 28′
Size – 1,232 SF
Beds – 2
Baths – 1.5
Starting from $110/ft²
Options:
28′ x 14′ Roof Extension Covered Porch
20′ x 14′ Roof Extension Covered Porch
Timber Stain

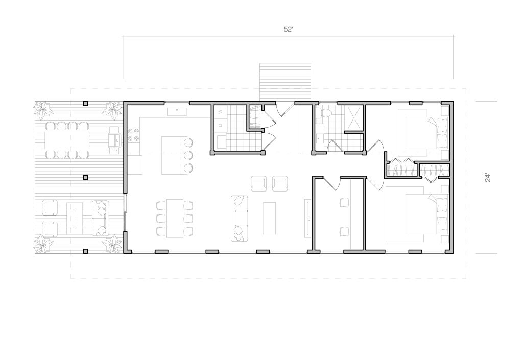
Gneiss Vista

The Gneiss Vista

Dimensions 52′ x 24′
Size – 1,248 SF
Beds – 2
Baths – 1
Starting from $116/ft²
Options:
24′ x 8′ Roof Extension Covered Porch
20′ x 14′ Roof Extension Covered Porch
8′ x 6′ Shed Roof Over Entry
Timber Stain

standard inclusions

Gneiss Vista Standard Specs

exterior Wall Panels

  • 8’ – 11’ 6” Main Level Walls
  • 2×6 Stud Wall, 16” o.c Spacing.
  • 7/16” OSB Sheathing.
  • Typar House Wrap
  • 1×3 Strapping with ¾” Airspace.
  • LP Smartside 8” Lap Eng. Wood Siding

Structural Pine Timbers

  • 8 x 8 Timber Posts
  • 8 x 8 Timber Beams or
  • 8 x 10 Timber Beams or
  • 8 x 12 Timber Beams

R40 Insulated Roof Panels

  • ½” Plywood Exterior Sheathing
  • 2×12 spruce rafters, 24” o.c spacing.
  • 9 ¾” EPS Insulation
  • 7/16” OSB interior sheathing
  • 1×6 Pine T&G ceilings

White W&D Package

  • Energy Star Windows and Doors
  • Low-E Argon Vinyl Windows
  • Full Lite Steel Entry Door
  • 6’ Vinyl Patio doors
  • W&D’s Require Jamb Extension
Exclusions: Foundation, Sub Floor, Transportation, Crane, Decks, Exterior Roofing (asphalt or steel), Exterior wall
insulation, Interior framed walls, Stairs & railings Interior wall and floor finishing, Plumbing, Electrical, HVAC, Kitchen & bathroom fixtures cabinetry, vanities, appliances, etc.
Branded by Projectsity
Scroll to Top